This listing is provided by Royal Pacific Realty Corp.
$6,880,000
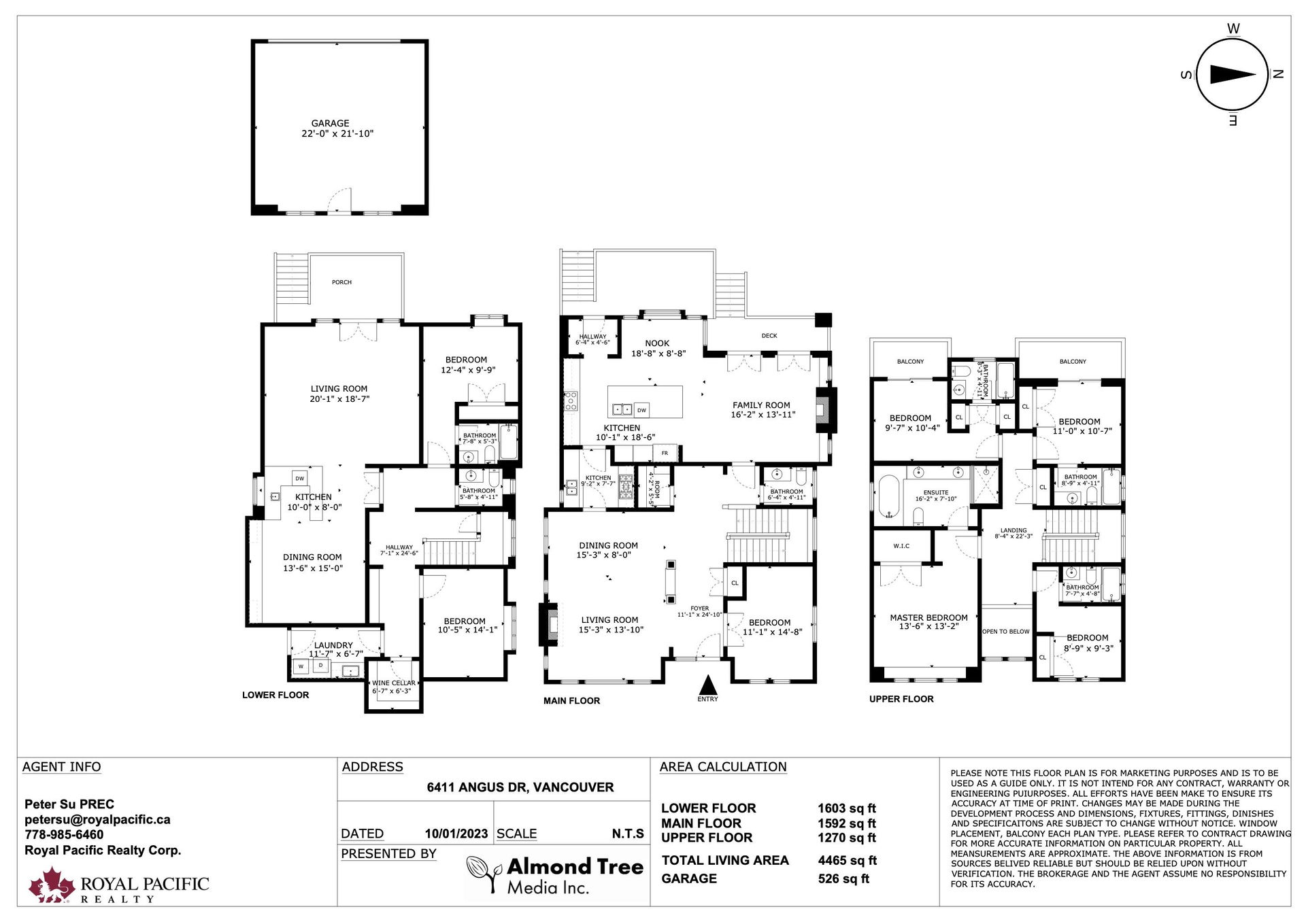
6411 Angus Drive
Sold
This listing is provided by Royal Pacific Realty Corp.
Listing provided courtesy of Greater Vancouver REALTORS®. Disclaimer: The information contained in this listing has not been verified by RE/MAX Select Properties and should be verified by the buyer.
Features & amenities
Additional details
- MLS® # R2771051
- Type House
- Subtype House/Single Family
Listing is presented by
Roch & Weeks Real Estate Group
RE/MAX Select Properties